
案例解析
工程名称:贝壳有品咖啡店装修设计方案
设计单位:山东宜和宜美家居科技有限公司研发中心
建设地点:本项目位于北京市海淀区
设计理念:最初想构造的风格是一种生活哲学,在设计上追求大繁至简、返璞归真,是当下最具代表性的禅意美学的体现。
追求简约、自然,也是极简生活的引领者。
本空间内,家具的高度与明度都非常重要,家具不宜过高、颜色不宜过深。
从视觉认知交互程度而言,设计即强调设计对象具有无限的包容性,给予接受者发挥其想象的广阔空间,从而极大地丰富了接受者感知力和理解力。
在营造氛围上用最少的设计元素隐喻极其丰富的设计内涵,可以用“清水出芙蓉,天然去雕饰”来诠释。



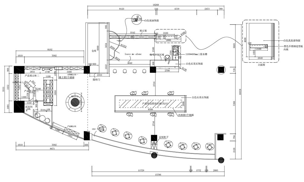
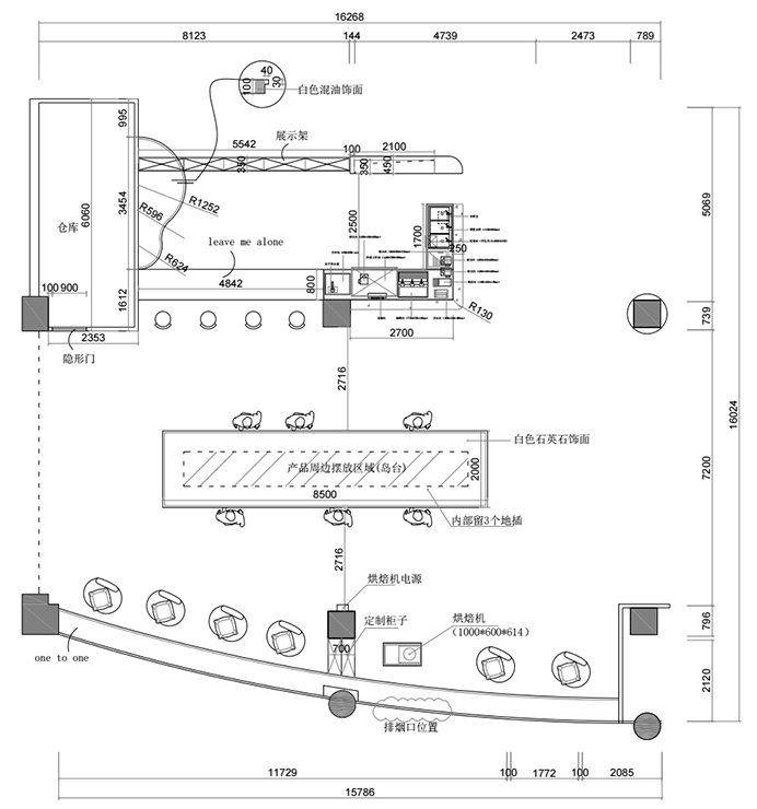
这个空间原有的建筑结构不是寻常的规则体,空间内并存曲线,水平差与结构柱,和本身所使用空间一个体位形状,原始尺寸将直接影响后期设计的精确度,尤其是靠窗曲线玻璃幕墙的位置给我们的测量上带来了不少的困难。经多次勘察现场,我们把本区域的户型通过3DMAX 软件 精确到1:1的mm的模拟程度进行了复原。

Visual Presentation是吸引顾客的第一视线的重要演示空间,我们设计的初衷就是要打破常规,选择了木色+白色为主色流,当然还有1402蓝,做为VP中的一个强调色,聚焦色来使用。在人流涌动的办公楼中,稍微灰偏白色的基础色,以及原木色,能让人瞬间放松下来。

运用“超级模特”巩固品牌形象,我们做了一面乐高墙设计,乐高墙的内容就是一个马赛克纹理的贝壳卡通人,足以让这个空间变得生动有趣。

在有品店咖啡店体验中,陈列是最末端的环节,与消费者的接触最为密切。而陈列的最高境界,就是让产品自己把自己卖出去,对每一件产品的陈列,我们都在顶面赋予了它单独的灯光设计。
在有品店中央是一个面积不大的展示区,没有大面积的场景式体验区,也没有网红打卡点。商品陈列采用的是能陈列、存储更多商品的货架,产品横向密集排列。
基于接受者体验的对话,拉近了品牌与接受者之间的距离。








